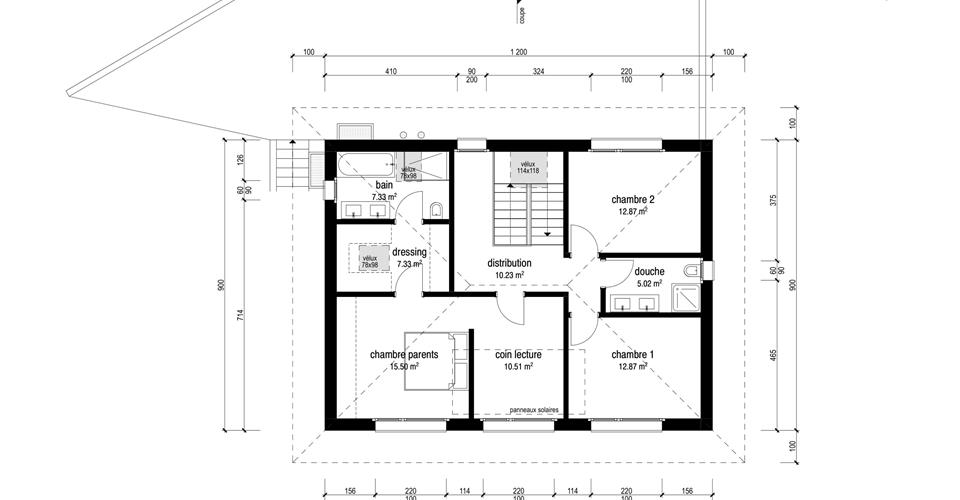
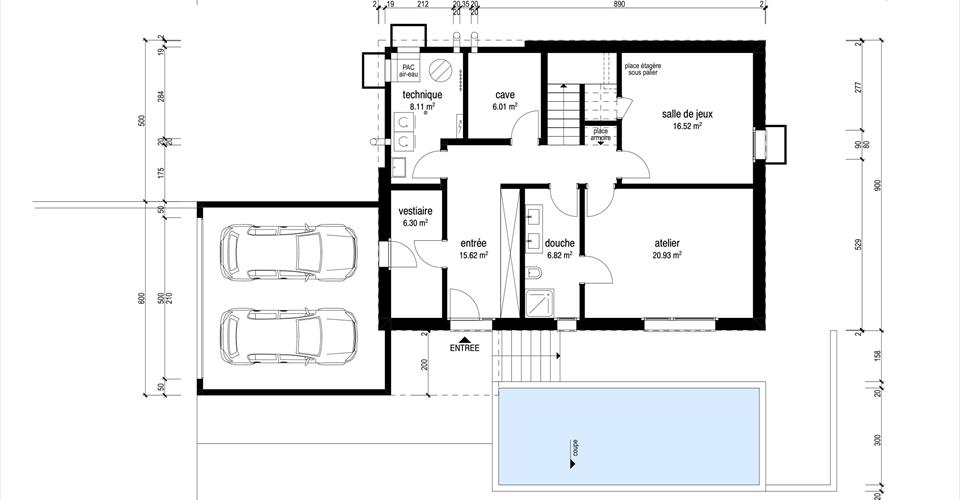
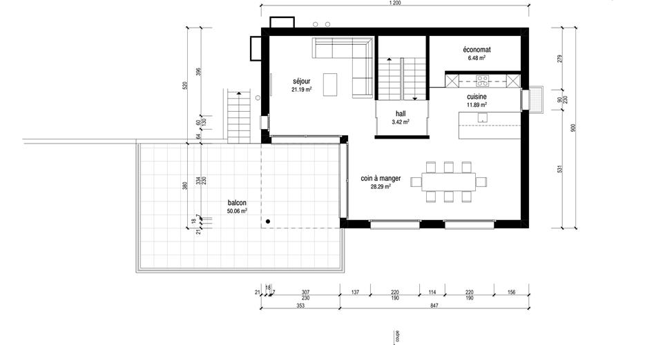
Magnifique villa d’architecte à construire à Grandvaux, sur une parcelle située dans un quartier très calme. Le terrain offre un ensoleillement optimal et une belle vue dégagée sur le lac. Cette villa est un exemple, le projet reste totalement à créer sur-mesure selon vos demandes. Construction totalement traditionnelle avec des entreprises locales, et finitions de qualité. Inclus dans le prix total CHF 2’358’000.- : – terrain – villa – panneaux photovoltaïques – aménagements extérieurs – taxes Généralités : – sous-sol – rez – étage – garage double Dimensions maison : selon plans Surfaces nettes : 267 m2 Surface habitable : 220 m2 Construction : traditionnelle Chauffage : PAC air-eau Vitrages triples verres / 0.5 labellisés Minergie-P Sur un simple rendez-vous, vous obtiendrez les éléments suivants : – offre détaillée du budget global – un dossier complet de la villa, choisie dans notre catalogue (plans 1/100ème, perspectives, descriptif) – visites de nos réalisations – étude de votre budget et du plan de financement avec banques Contactez-nous, nous sommes à votre écoute
Compare listings
Compare