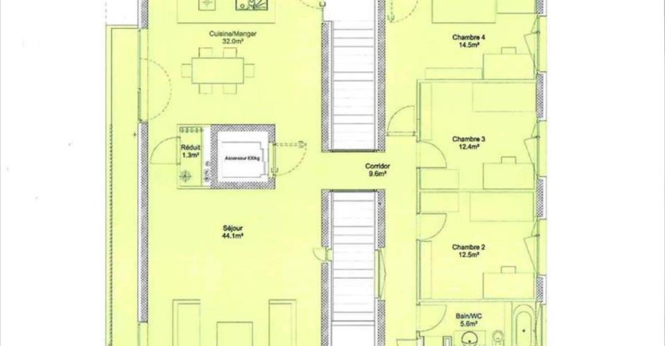
BARNES Suisse SA a le plaisir de vous présenter ce bel appartement familial de 5.5 pièces moderne avec une vue imprenable sur le lac Léman et les Alpes. L’immeuble a été érigé en deux blocs architecturaux distincts qui séparent idéalement le côté jour du côté nuit et relié par un lumineux corridor intérieur. Occupant tout l’étage, ce bien immobilier possède toutes les expositions et un ensoleillement optimal. L’espace de vie est fonctionnel et orienté vers les différents extérieurs qui profitent sans cesse de la vue lac. La cuisine, dinatoire, est entièrement équipée et bénéficie d’un îlot central ainsi que d’un réduit. La partie nuit, avec ses 4 chambres à coucher est distribuée par un couloir avec fenêtre panoramique afin de parfaire l’ambiance contemporaine omniprésente. La chambre parentale avec salle de douche profite d’une vue lac, la salle de bains avec WC et fenêtre est lumineuse. Terrasse et balcon totalisant 40m² de surface, une grande cave ainsi qu’une place de parc extérieure couverte et une place de parc non-couverte, aux prix de CHF 25’000.- et CHF 20’000.- (en sus du prix de vente) composent cet appartement d’environ 150 m² habitables. A visiter sans tarder !
Compare listings
Compare