Appartement 4 pièces à acheter à Blonay – Saint-Légier

  • CHF 1,390,000
Blonay - Saint-Légier, 5, Route du Tirage, Saint-Légier-La Chiésaz, Blonay - Saint-Légier, District de la Riviera-Pays-d’Enhaut, Vaud, 1086, Schweiz/Suisse/Svizzera/Svizra
Acheter
Appartement 4 pièces à acheter à Blonay – Saint-Légier
Blonay - Saint-Légier, 5, Route du Tirage, Saint-Légier-La Chiésaz, Blonay - Saint-Légier, District de la Riviera-Pays-d’Enhaut, Vaud, 1086, Schweiz/Suisse/Svizzera/Svizra
  • CHF 1,390,000

Aperçu

Identifiant de propriété: HZ365214
  • Appartements
  • Type de propriété
  • 3
  • Salles de bain
  • 124

Description

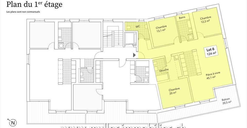
PERMIS DE CONSTRUIRE OBTENU ! Spacieux appartement de 4 pièces, idéal pour une famille, offrant une grande surface habitable de 124 m2 et un balcon pour profiter d’un bel extérieur. Dans un cadre calme et fonctionnel, cet appartement offre une belle luminosité et une vue dégagée sur le lac et les environs. Un véritable cocon pour votre famille à 2 min de l’autoroute et proche des transports publics. CONFORT Environnement calme Appartements spacieux et lumineux Grandes baies vitrées Aire de jeux pour les enfants Balcon Chauffage pompe à chaleur – sol Technologie géocooling pour rafraichir naturellement l’habitat en été Sol, cuisine et sanitaire : choix au gré du preneur Deux places de parc intérieures à CHF 40’000.- l’unité en sus Disponibilité : à convenir. ACCÈS À 2 min de l’autoroute À 10 min de Vevey et du bord du lac À 25 min de Lausanne À deux pas de l’école, du bus et de la gare ! 1ER ÉTAGE Un hall d’entrée, un WC visiteurs, une grande pièce à vivre de 45,1 m2 avec cuisine ouverte et accès au balcon. Une salle de bains, 2 jolies chambres et une suite parentale avec espace dressing et douche. EXTÉRIEURS Un joli balcon de 20,5 m2 orienté sud-ouest. Commun : places visiteurs, parking à vélo, place de jeux pour les enfants (et les plus grands). REMARQUE Visitez le mini-site du projet pour en savoir plus : https://st-legier.muller-immobilier.ch

  • Adresse Rte du Tirage 5, 1806 Saint-Légier-La Chiésaz, Switzerland
  • Ville Blonay - Saint-Légier
  • Code postal 1806
  • Pays Switzerland

Caractéristiques

Détails

  • Identifiant de propriété: HZ365214
  • Prix: CHF 1,390,000
  • Surface de la propriété: 124 m²
  • Pièces: 4
  • Salles de bain: 3
  • Type de propriété: Appartements
  • Statut de la propriété: Acheter

Informations de contact

Voir les annonces
Appartement 4 pièces  à acheter à Blonay – Saint-Légier
  • Appartement 4 pièces à acheter à Blonay – Saint-Légier

Demander des informations sur cette propriété



    Annonces similaires

    Compare listings

    Compare
    Appartement 4 pièces  à acheter à Blonay – Saint-Légier
    • Appartement 4 pièces à acheter à Blonay – Saint-Légier