Appartement 4.5 pièces à acheter à Cronay

  • CHF 815,000
Cronay, Rue du Grand Borgeaud, Cronay, District du Jura-Nord vaudois, Vaud, 1406, Schweiz/Suisse/Svizzera/Svizra
Acheter
Appartement 4.5 pièces à acheter à Cronay
Cronay, Rue du Grand Borgeaud, Cronay, District du Jura-Nord vaudois, Vaud, 1406, Schweiz/Suisse/Svizzera/Svizra
  • CHF 815,000

Aperçu

Identifiant de propriété: HZ299006
  • Appartements
  • Type de propriété
  • 3
  • Chambres
  • 2
  • Salles de bain
  • 116
  • 2026
  • Année de construction

Description

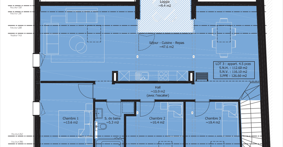
Coralie Anker a le plaisir de vous présenter cette nouvelle promotion à Cronay, à seulement 6 km d’Yverdon-les-Bains. La situation est idéale. Vous profiterez du calme de la campagne et rejoindrez rapidement les axes autoroutiers ainsi que le centre-ville d’Yverdon-les-Bains en moins de 10 minutes. Les généreuses surfaces habitables des futurs appartements ainsi que le magnifique panorama sur la chaîne des Alpes promettent une qualité de vie des plus agréables. Cette ancienne ferme, qui sera entièrement rénovée, proposera 3 logements de qualité de 4.5 et 5.5 pièces avec jardin, terrasse ou balcon, à savoir : – Rez-de-chaussée : 4.5 pièces d’environ 105 m2 + cave. Afin de profiter pleinement des extérieurs, cet appartement bénéficiera d’un grand jardin privatif ainsi que 2 terrasses totalisant environ 218 m2. – 1er étage : 5.5 pièces d’environ 125 m2 + cave. Une grande terrasse de plus de 17 m2 avec vue dégagée sur la chaîne des Alpes complètera ce bien. – 1er étage et combles : 4.5 pièces d’environ 116 m2 + cave et grand galetas privatif. Une jolie loggia d’environ 9.4 m2 ainsi que des poutres apparentes procureront à cet appartement un charme tout particulier. Les appartements des étages bénéficieront d’un coin de jardin potager. 3 places de parc par logement en sus. Vous pourrez personnaliser votre logement grâce à des finitions à choix. Budgets à disposition sur simple demande. Construction aux dernières normes énergétiques pour un confort optimal. Vente sur plan pour des frais d’achat réduits. Le permis de construire est délivré ! Les amoureux de la nature apprécieront les balades alentours qui offrent un magnifique dégagement sur le Jura ainsi que sur la chaîne des Alpes. Cronay fait partie de l’Association scolaire intercommunal d’Yvonand. Des transports scolaires sont organisés. Le collège de Cronay accueille 2 classes, de la 3P à la 6P. L’accueil de jour pour la petite enfance est géré par le réseau Yvonand-Menthue (RYMAJE). Dossier complet sur demande. N’hésitez pas à me contacter, je me tiens à votre entière disposition pour toute information complémentaire que vous pourriez souhaiter. Coralie Anker Immobilier Mail

  • Adresse Grand Borgeaud, 1406 Cronay, Switzerland
  • Ville Cronay
  • Code postal 1406
  • Pays Switzerland

Caractéristiques

Détails

  • Identifiant de propriété: HZ299006
  • Prix: CHF 815,000
  • Surface de la propriété: 116 m²
  • Chambres: 3
  • Pièces: 4.5
  • Salles de bain: 2
  • Année de construction: 2026
  • Type de propriété: Appartements
  • Statut de la propriété: Acheter

Informations de contact

Voir les annonces
Appartement 4.5 pièces  à acheter à Cronay
  • Appartement 4.5 pièces à acheter à Cronay

Demander des informations sur cette propriété



    Annonces similaires

    Compare listings

    Compare
    Appartement 4.5 pièces  à acheter à Cronay
    • Appartement 4.5 pièces à acheter à Cronay