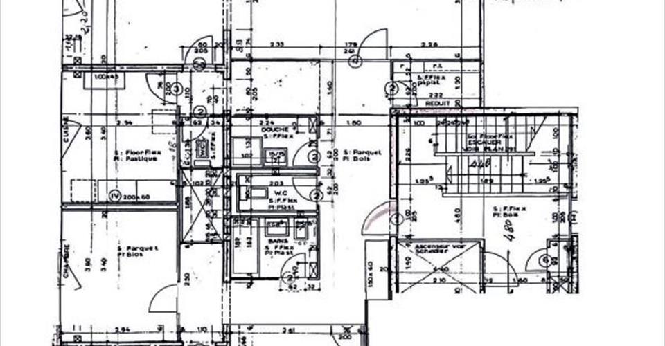
Spacieux et lumineux Bienvenue dans cet appartement de 7 pièces, perché au 25ème étage et offrant une vue époustouflante sur le Salève, le Jura et le Jet d’Eau. Avec sa luminosité naturelle, cet appartement vous séduira par ses espaces généreux et sa vue panoramique exceptionnelle. Bien que les cuisines et salles de bains datent des années 70, quelques mises au goût du jour permettront de les moderniser selon vos préférences. Caractéristiques Principales : ? Année de Construction : 1970 ? Surface PPE : 145 m² ? Étage : 25ème ? Chambres : 3 ? Salles d’Eau : 2 ? Place de Parc : Disponible en location à 108.- CHF/mois ? Piscines Sur Le Toit : 2 ? Balcon : Non ? Chauffage : Centralisé (CAD) ? Charges PPE et Chauffage : Environ CHF 800.-/mois ? Disponibilité : Disponible Immédiatement Rénovations à Prévoir : ? Rafraîchissements ? Modernisation de la Cuisine et des Salles de Bains Disposition : 1 Hall d’Entrée avec Armoires de Rangement, 1 Grand Séjour, 1 Salle à Manger/Chambre, 1 Cuisine Fermée, 3 Chambres, 1 Salle de Douche avec Lavabo, 1 Salle de Bains avec Lavabo, 1 WC Visiteurs, 2 Cagibis Atouts : ? Spacieux et Lumineux ? Appartement d’Angle ? Vue Panoramique Magnifique ? Accès Direct Aux Deux Piscines Sur Le Toit ? Parc de Jeux ? Balades Au Bord du Rhône ? Tous Les Commerces à Proximité Prix : CHF 1’050’000.- Pour organiser une visite ou obtenir le dossier complet, veuillez contacter Thierry 7/7 SEGIMO GROUPE IMMOBILIER Agence immobilière Genève (siège) visitez notre site www.segimo.ch
Compare listings
Compare