Avenue Blanc 38
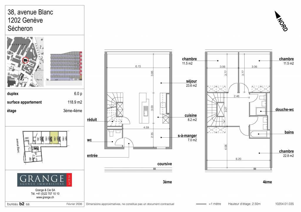
Agréable appartement en duplex traversant, situé au 3ème étage d’un immeuble récent proche des organisations internationales et de toutes commodités.
Ce bien se compose comme suit:
Au 3ème étage, cuisine entièrement équipée ouverte sur séjour/salle-à-manger, réduit et toilettes visiteurs.
Au 4ème étage, trois chambres avec rangement, salle de bains et salle de douches avec toilettes.
Le tout représentant environ 118 m2.
Deux places de parking en enfilade incluses dans le loyer.
Buanderie, local à vélos, interphone, ascenseur et cave.
Numéro de référence : 3363
Compare listings
Compare