Appartement 3 pièces à louer à Gryon

  • CHF 1,320/Mensuel
Gryon, Route de Rabou, Gryon, District d'Aigle, Vaud, 1882, Schweiz/Suisse/Svizzera/Svizra
Louer
Appartement 3 pièces à louer à Gryon
Gryon, Route de Rabou, Gryon, District d'Aigle, Vaud, 1882, Schweiz/Suisse/Svizzera/Svizra
  • CHF 1,320/Mensuel

Aperçu

Identifiant de propriété: HZ334337
  • Appartements
  • Type de propriété
  • 72
  • 2025
  • Année de construction

Description

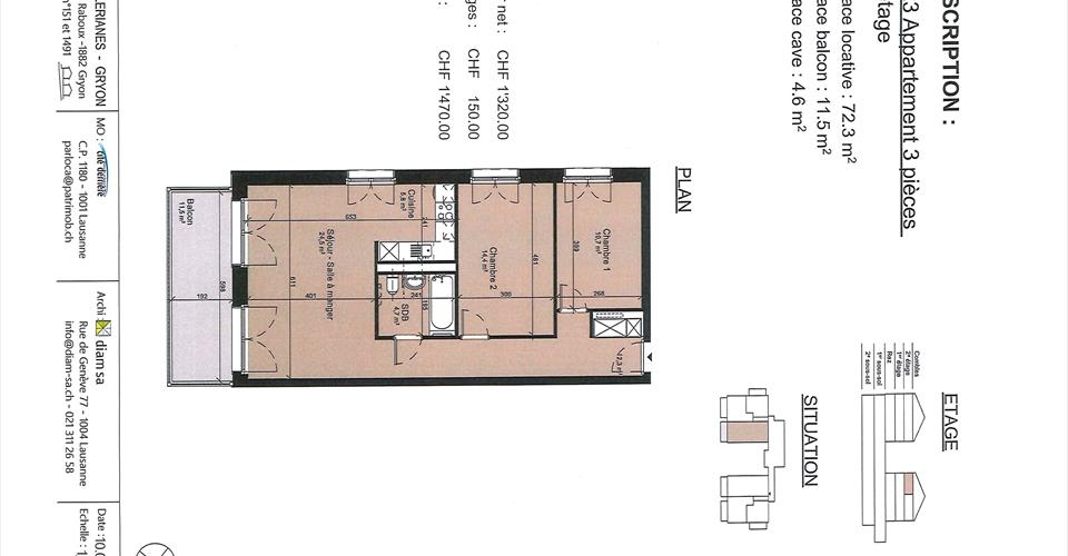
Logement de 3 pièces neuf avec vue panoramique dans une construction neuve. Nous avons le plaisir de vous proposer ce logement de 3 pièces situé à Gryon, au cœur des Alpes vaudoises. Points forts du logement : Construction neuve – livraison dès le 1er octobre 2025 Cuisine ouverte moderne et entièrement équipée Matériaux neufs et de qualité pour un intérieur élégant et chaleureux Vue panoramique d’exception Pièces lumineuses réparties sur deux niveaux, offrant espace et intimité Balcon généreux pour profiter de l’air pur et du paysage alpin Une salle de bains avec finitions modernes WC séparé pour plus de confortSituation idéale : À deux pas du centre du village et de toutes les commodités Accès rapide aux pistes de ski, chemins de randonnée et activités de montagne Environnement calme et préservé Possibilité de louer une place de parc en sus 📅 Disponibilité : dès le 1er octobre 2025 📞 Visites possibles dès maintenant – sur rendez-vous

  • Adresse Rte de Rabou 1, 1882 Gryon, Switzerland
  • Ville Gryon
  • Code postal 1882
  • Pays Switzerland

Caractéristiques

Détails

  • Identifiant de propriété: HZ334337
  • Prix: CHF 1,320/Mensuel
  • Surface de la propriété: 72 m²
  • Pièces: 3
  • Année de construction: 2025
  • Type de propriété: Appartements
  • Statut de la propriété: Louer

Informations de contact

Voir les annonces
RS Servim Sàrl

Demander des informations sur cette propriété



    Annonces similaires

    Compare listings

    Compare
    RS Servim Sàrl
    • RS Servim Sàrl