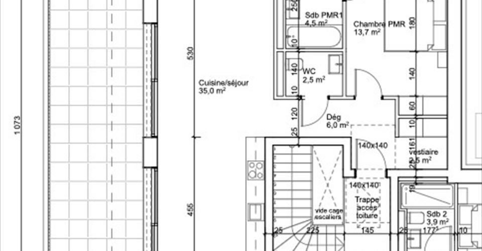
Situé dans un quartier résidentiel, cet appartement intégré au programme immobilier Harmony, offre un équilibre parfait entre confort moderne et nature préservée. Pensé pour répondre aux exigences d’un mode de vie contemporain, il séduit par ses volumes généreux, sa luminosité et la qualité de ses finitions. D’une surface de 82 m², l’appartement s’ouvre sur un vaste espace de vie baigné de lumière grâce à de grandes baies vitrées qui permettent une belle connexion entre l’intérieur et l’extérieur. La pièce principale intègre un séjour convivial et une cuisine ouverte, idéale pour les moments de partage. L’agencement des espaces a été conçu pour garantir une circulation fluide et une utilisation optimale de chaque mètre carré. L’extérieur constitue un véritable atout. L’appartement dispose d’une terrasse de 76 m², parfaite pour les repas en plein air ou les instants de détente. Ce vaste espace extérieur, rare sur le marché immobilier genevois, assure calme et intimité, tout en permettant de profiter pleinement de l’environnement naturel du quartier. Le confort thermique et énergétique est au cÅ“ur de ce projet. Un système de chauffage par pompe à chaleur air-eau assure une chaleur douce et homogène diffusée par le sol, tandis que des panneaux solaires et photovoltaïques installés en toiture permettent une consommation d’énergie optimisée. L’isolation performante garantit un confort optimal en toute saison, réduisant ainsi les besoins énergétiques et assurant une meilleure maîtrise des coûts. Les prestations de l’appartement sont à la hauteur des attentes les plus exigeantes. Les matériaux ont été soigneusement sélectionnés pour leur qualité et leur durabilité, avec un parquet élégant dans les pièces de vie, du carrelage raffiné dans les salles d’eau, ainsi que des équipements sanitaires et une cuisine personnalisables selon les préférences des futurs propriétaires. Idéalement situé à Vessy, ce bien bénéficie d’un environnement paisible tout en restant proche des commodités essentielles. Le village, avec ses commerces, ses écoles et ses services, est accessible en quelques minutes. Cet appartement représente une opportunité unique pour ceux qui recherchent un cadre de vie privilégié, alliant modernité, confort et connexion avec la nature.
Compare listings
Compare