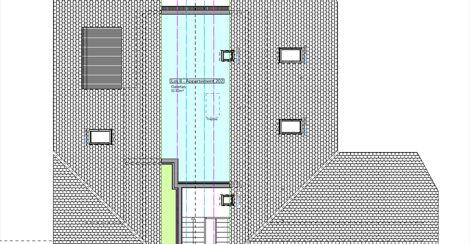
KREAL Immobilier vous propose cet appartement de 3,5 pièces dans une nouvelle promotion de 9 appartements en PPE, située dans un quartier résidentiel calme à Champagne, à seulement quelques minutes du lac et au coeur d’un cadre verdoyant. Le projet a été pensé pour offrir à ses résidents un excellent confort de vie, tout en répondant aux normes énergétiques actuelles. Le bâtiment, dont la livraison est prévue pour octobre 2025, sera équipé d’un système de chauffage au sol alimenté par une pompe à chaleur air-eau, garantissant une chaleur douce et homogène dans chaque logement. Des fenêtres triple vitrage assureront une isolation thermique et phonique optimale, tandis que des panneaux solaires photovoltaïques viendront compléter les installations. Un ascenseur facilitera l’accès aux étages, et chaque appartement bénéficiera d’un interphone ainsi que de thermostats individuels dans chaque pièce, permettant une gestion personnalisée du chauffage. Cet appartement se trouve au dernier étage de l’immeuble et offre une surface habitable d’environ 74 m². Il se compose d’une cuisine ouverte entièrement équipée, donnant sur une pièce à vivre lumineuse, deux chambres à coucher de belles dimensions, d’une salle de bains, et d’un galetas spacieux, directement accessible depuis l’intérieur de l’appartement. Cet espace supplémentaire offre diverses possibilités d’aménagement selon vos besoins. Une loggia vient compléter ce bien, accessible directement depuis le salon / salle à manger, idéal pour profiter d’un extérieur privatif au calme. Les futurs propriétaires bénéficieront également d’une cave privative, d’un local à vélos, et d’une buanderie commune. Une place de stationnement intérieure est disponible (CHF 20’000.? en sus du prix de vente), avec une option d’installer une borne de recharge pour véhicule électrique. Envie de découvrir ce bien coup de coeur ? Contactez-nous sans attendre.
Compare listings
Compare