Appartement 2.5 pièces à louer à Renens

  • CHF 1,900/Mensuel
Renens, Rue du Chêne, Renens, District de l'Ouest lausannois, Vaud, 1020, Schweiz/Suisse/Svizzera/Svizra
Louer
Appartement 2.5 pièces à louer à Renens
Renens, Rue du Chêne, Renens, District de l'Ouest lausannois, Vaud, 1020, Schweiz/Suisse/Svizzera/Svizra
  • CHF 1,900/Mensuel

Aperçu

Identifiant de propriété: HZ345253
  • Appartements
  • Type de propriété
  • 83
  • 2025
  • Année de construction

Description

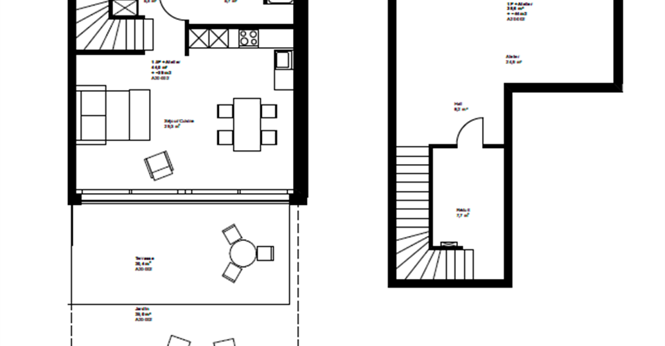
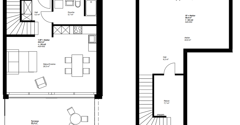
1.5 pièce neuf + Atelier au sous-sol de 38m2 + terrasse de 20m2 avec jardin privatif de 25m2 Livraison prévue dès le printemps 2026 Découvrez LES CHÊNES DE RENENS, un nouveau quartier résidentiel, offrant 175 appartements neufs à louer, du studio cosy au spacieux 5.5 pièces familial, en passant par des duplex avec ateliers privatifs et des logements à loyer abordable. Ici, chaque style de vie trouve sa place ! Tous les appartements se distinguent par leur généreuse superficie, leur agencement optimal et des finitions de standing, offrant un cadre de vie confortable et raffiné. Imaginez un îlot de tranquillité, baigné de lumière et conçu pour votre confort. LES CHÊNES DE RENENS, cest 175 appartements contemporains nichés dans un ancien site industriel, transformé en un quartier résidentiel moderne et convivial. Chaque immeuble sorganise autour dun vaste parc arboré, véritable bulle de verdure. La plupart des appartements profitent dun espace extérieur privé, idéal pour se ressourcer ou partager des moments entre voisins. Les buanderies-lounges communautaires, à chaque entrée, deviennent de vrais lieux de rencontre et déchanges.

  • Adresse Rue du Chêne 20, 1020 Renens, Switzerland
  • Ville Renens
  • Code postal 1020
  • Pays Switzerland

Caractéristiques

Détails

  • Identifiant de propriété: HZ345253
  • Prix: CHF 1,900/Mensuel
  • Surface de la propriété: 83 m²
  • Pièces: 2.5
  • Année de construction: 2025
  • Type de propriété: Appartements
  • Statut de la propriété: Louer

Informations de contact

Voir les annonces
de Rham SA

Demander des informations sur cette propriété



    Annonces similaires

    Compare listings

    Compare
    de Rham SA
    • de Rham SA